Vente appartement Marseille 8ème (13008)
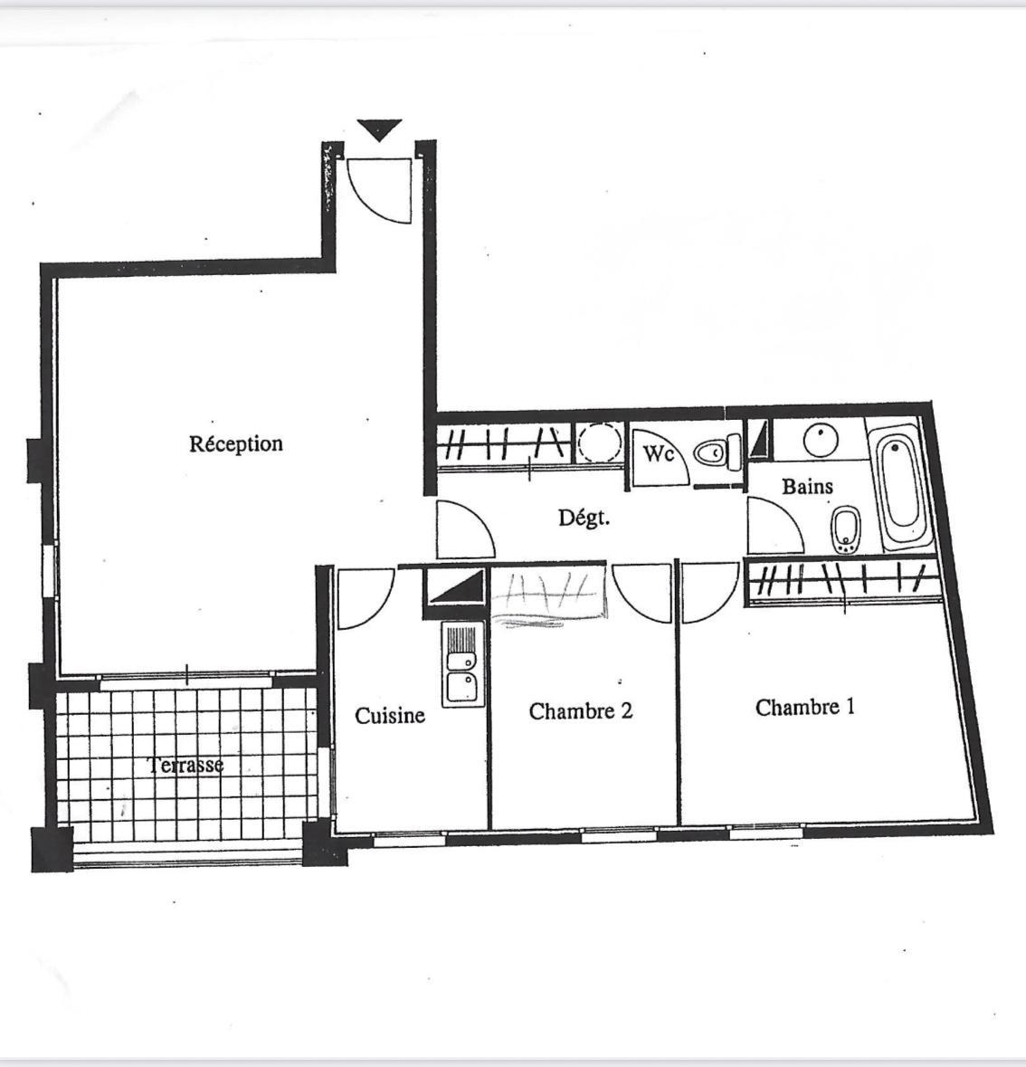
Appartement 3 pièces 69,12 m²
Quartier TURCAT M?RY 13008
| Prix * | 298 000 € |
| Bien en copropriété | |
| Charges annuelles | 1720 € |
* Honoraires à la charge du vendeur
Idéalement situé dans le très recherché 8ème arrondissement de Marseille, à 2 mn du métro Périer, des commerces et des commodités, et du stade Vélodrome,
découvrez ce bel appartement de type 3 de 69.12 m² dans une résidence semi récente parfaitement entretenue.
Le séjour et la cuisine ouvrent sur le balcon -terrasse exposée plein sud à l'arrière de l'immeuble au calme absolu.
2 chambres 13 +10 m²
sdb, wc séparé
nombreux rangements
résidence avec parties communes soignées et ascenseur
A visiter sans tarder
Agence des Tanneurs, 13007
Nathalie SAVATTE POGGIALE 06-64-44-60-64
Référence ▶ V093071
| Surface | 69,12 m² |
| Pièces | 3 pièces |
| Chambres | 2 chambres |
| Cuisine | Séparée équipée |
| Salle de bain | 1 |
| Toilettes | 1 |
| Meublé | Non |
| Étage | 2 (sur 5) |
| Ascenseur | Oui |
| Cave | Non |
| Balcon | Oui |
| Terrasse | Oui |
| Parking | Non |
| Jardin | Non |
| Orientation | Sud |
Performance énergétique
Diagnostic de performance énergétique (DPE)
Indice d'émission de gaz à effet de serre (GES)
Voir le detail
